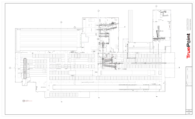
3D Laser Scanning Manufacturer of Brick and Stone Products
To keep up with innovative manufacturing techniques and the growing demand for wood molded brick, our client was planning building upgrades to its Pennsylvania facility. 150,000 sq. ft. of space was 3D laser scanned and modeled. TruePoint delivered an LOD 200 architectural, structural and MEP Revit model and 2D AutoCAD floor plans and interior elevations.








