Brick Manufacturer Uses 3D Laser Scanning For Facility Upgrades
Location: Shoemakersville, Pennsylvania
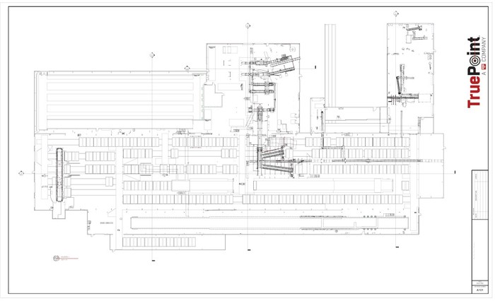
Task: The demand for wood molded brick continues to grow as architects and designers utilize more brick in building designs. To keep up with this demand, our client, the largest molded brick manufacturer in the United States, is planning upgrades to its Shoemakersville, Pennsylvania facility. These upgrades include adding a second kiln to increase capacity and modernizing equipment to improve product quality. The client requested point cloud data, 2D CAD drawings, and a 3D Revit model to understand the existing conditions of the facility.
Challenge: Our client was on a tight timeline. They requested as-built data, 2D drawings and a 3D BIM model of their 150,000 square feet facility in 12 business days. To complete the facility upgrades, they needed line, equipment, and tie-in points.
Solution: 150,000 sq. ft. of space was 3D laser scanned in two days on-site with the Leica P50 ScanStation and the RTC360 laser scanner. 279 laser scans were taken to capture complete as-built data of the site’s structure, equipment, and MEP.
Deliverable: TruePoint delivered an LOD 200 design-intent architectural, structural, and MEP Revit Model, 2D AutoCAD floor plans and interior elevations, and an RCS point cloud file. MEP piping and conduit 2 inch and larger, HVAC ductwork, pumps, motors and equipment were 3D modeled to within ¼ inch accuracy. The 3D model will allow our client to discover any discrepancies between the design and existing conditions so they can make necessary adjustments before the facility upgrade begins.
Added Value: Coordinating the work of designers with structural, MEP, and other construction teams is often difficult. Laser scanning provides a fast and accurate way to collect large amounts of site measurement data which can be used to expedite the retrofit design process. 3D scanning will help this client design to the actual as-built conditions, reducing clashes and change orders. Inaccurate data would slow teams down, increase the risk of miscommunication, and create prefabrication and installation problems that could lead to rework.
For 3D laser scanning services in Pennsylvania, call:
- Philadelphia -- Phone: 215-871-9231: Email: philadelphia@truepointscanning.com
- Pittsburgh -- Phone: 412-639-7564: Email: pittsburgh@truepointscanning.com
Images for Brick Manufacturer Uses 3D Laser Scanning For Facility Upgrades
